Die wandelbare Werkstatt 500 m² für kreative, projektbasierte Teams Fünf Zonen. Drei Flexibilitätsgrade. Für Teams, wo menschliche Kollaboration die Währung ist.
Kunde
—
Zeitraum
2026
—
2026
Rolle
Konzept & Strategie
Projektübersicht
500 m² für kreative, projektbasierte Teams
Diese Werkstatt folgt fünf Gestaltungsprinzipien für kreative, projektbasierte Teams: Akustische Zonierung statt flächendeckendem Open Space. Modulare Infrastruktur für wachsende Teams. Tägliche Anpassbarkeit an dynamische Arbeitsweisen. Echter Mehrwert gegenüber dem Homeoffice. Raumverteilung für Kollaboration statt Schreibtischarbeit.
Für wen? Für Teams, wo menschliche Kollaboration die Währung ist: Design-Agenturen, Softwareentwicklung, Produktentwicklung, Innovation Labs, Beratungsunternehmen und interdisziplinäre Start-ups. Überall dort, wo Teamgrössen dynamisch wachsen und schrumpfen, wo Prototyping und Workshops zum Alltag gehören, wo physische Begegnung einen echten Unterschied macht.
Das Prinzip: Minimale feste Verbauung (30%) für Infrastruktur – maximale Beweglichkeit (70%) für alle Arbeitsbereiche. Statt flächendeckendem Open Space: gezielte akustische Zonierung durch Raum-in-Raum-Systeme, textile Vorhänge und eine bewegliche Faltwand.
Herausforderungen
Das Office muss einen Mehrwert schaffen, den das Homeoffice nicht bieten kann
Kreative, projektbasierte Teams arbeiten in kurzen, intensiven Projektphasen von 2-4 Wochen. Ein Projekt startet mit vier Personen, wächst auf zwölf, schrumpft wieder. Da KI zunehmend Routineaufgaben übernimmt, wird menschliche Kollaboration zur wertvollsten Währung – kreative Problemlösung, interdisziplinäres Denken, physisches Prototyping.
Das Homeoffice bleibt für konzentrierte Einzelarbeit relevant. Das Office muss dort überzeugen, wo es das Homeoffice nicht kann: Spontane Begegnungen, kreative Reibung, physische Workshops, Kundenpräsentationen.
Klassische Büros können das nicht abbilden: Feste Teamräume sind oft falsch dimensioniert. Open Space erzeugt Dauerlärm. Organisatorische Veränderungen erfordern teure bauliche Umbauten.
Die zentrale Herausforderung: Wie schaffen wir einen Raum, der gleichzeitig Magnet für dynamische Kollaboration ist und Refugium für konzentrierte Fokusarbeit bleibt – und sich ohne bauliche Eingriffe neu konfigurieren lässt?




Resultate
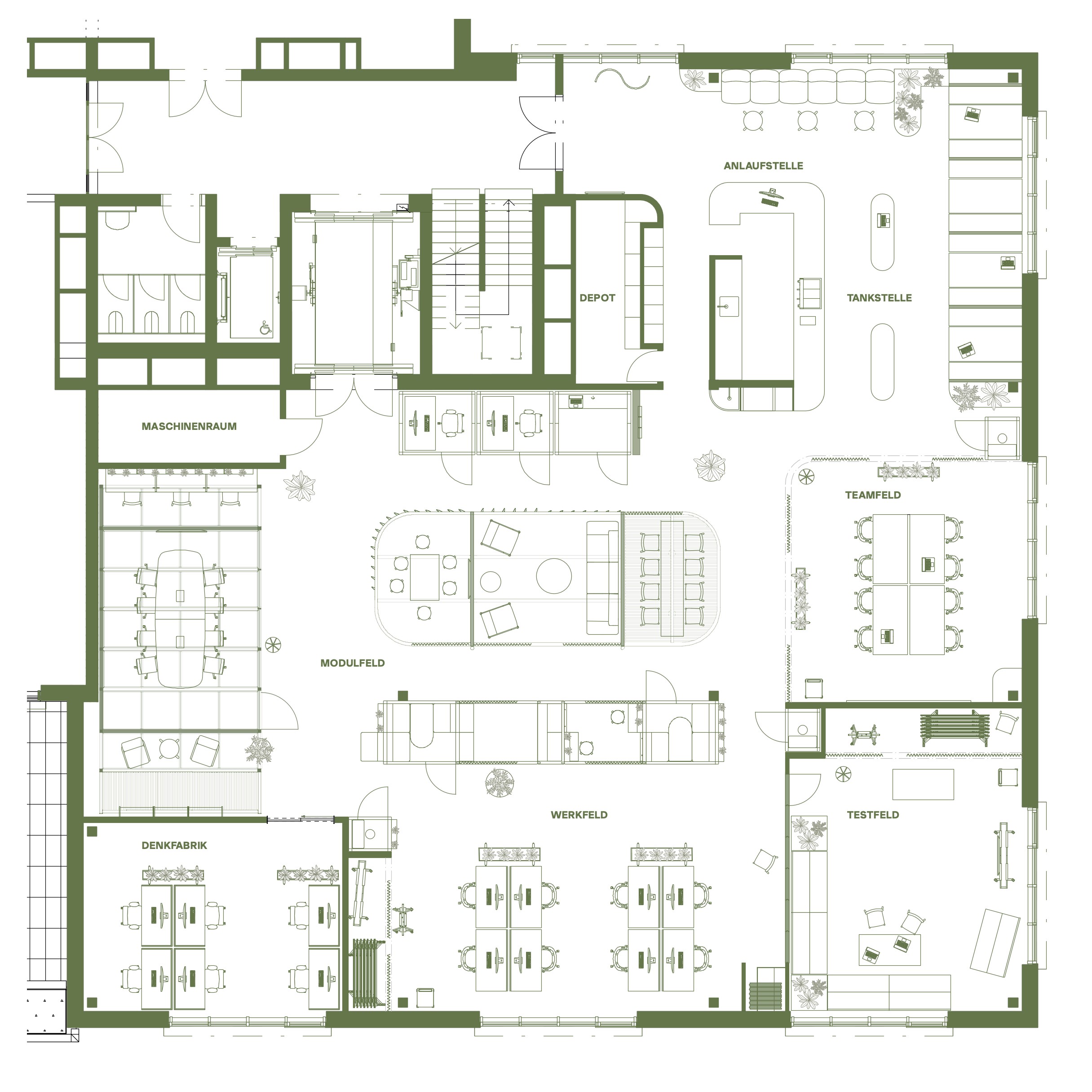
Drei flexible Zonen + zwei feste Anker
Die Tankstelle (fest verbaut)
Coffee-Store-Atmosphäre mit integriertem Empfang. Hier startet der Tag mit Espresso und spontanen Begegnungen. Kunden und Team treffen sich zwischen Theke und Sitznischen – kein steriler Empfang, sondern sozialer Magnet. Die Schwelle zwischen „draussen" und „drinnen" verschwindet. Hier passiert, was im Homeoffice unmöglich ist: zufällige Begegnung.
Das Teamfeld (täglich anpassbar)
Zentrale offene Fläche für projektbasierte Zusammenarbeit. Textile Vorhänge ermöglichen akustische Abschottung bei Bedarf. Wird zur Arena umfunktioniert für Kundenpräsentationen oder Events. Transformation in 15 Minuten.
Das Modulfeld (beliebig erweiterbar)
Mobile Systeme schaffen Schallbarrieren ohne feste Wände. Offene Module mit Vorhängen für Kreativ-Sessions, geschlossene Module für konzentriertes Arbeiten, Meetings und vertrauliche Gespräche. Beliebig erweiterbar – mobile Wirtschaftsgüter, die bei Umzügen mitgehen.
Werkfeld + Testfeld = Spielfeld (täglich neu konfigurierbar)
Zwei Zonen, getrennt durch eine bewegliche Faltwand. Werkfeld: 8 Arbeitsplätze für Projektarbeit. Testfeld: Prototyping und Experimente. Im geöffneten Zustand entsteht das Spielfeld – 100 m² zusammenhängende Fläche, auf der sämtliches Mobiliar auf Rollen steht. Je nach Bedarf lässt sich das Setting einstellen: Für Townhalls, grosse Workshops, Kundenpräsentationen oder interdisziplinäre Arbeitssessions.
Die Denkfabrik (fest verbaut)
Akustisch entkoppelt durch feste Wände. Geschützter Rückzugsort für Deep Work – wenn absolute Konzentration gebraucht wird.
Ergebnis
Vier Arbeitsmodi – offen, kollaborativ, experimentell, geschützt – die sich täglich oder nach Bedarf neu konfigurieren lassen. Funktionierendes Kabelmanagement bildet die technische Voraussetzung für Mobilität: Bodenkanäle und Deckenauslässe ermöglichen freie Positionierung aller Arbeitsplätze. Die sichtbare Infrastruktur an der Decke erlaubt zukünftige Anpassungen.
Keine Investition in starre Strukturen. Bei organisatorischen Veränderungen lassen sich die flexiblen Zonen komplett neu gestalten – durch Umpositionierung der mobilen Systeme, oder Erweiterung des Modulfelds. Eine Werkstatt, die sich anpasst – nicht an eine Prognose, sondern an die tatsächliche Nutzung.
Die Werkstatt denkt in Situationen, nicht in Zimmern.








Letzte Prototypen
Die wandelbare Werkstatt 500 m² für kreative, projektbasierte Teams Fünf Zonen. Drei Flexibilitätsgrade. Für Teams, wo menschliche Kollaboration die Währung ist.
Die wandelbare Werkstatt 500 m² für kreative, projektbasierte Teams Fünf Zonen. Drei Flexibilitätsgrade. Für Teams, wo menschliche Kollaboration die Währung ist.
Die wandelbare Werkstatt 500 m² für kreative, projektbasierte Teams Fünf Zonen. Drei Flexibilitätsgrade. Für Teams, wo menschliche Kollaboration die Währung ist.
Kunde
Kunde
Kunde
—
—
—
Zeitraum
Zeitraum
Zeitraum
2026
2026
2026
—
—
—
2026
2026
2026
Rolle
Rolle
Rolle
Konzept & Strategie
Konzept & Strategie
Konzept & Strategie
Projektübersicht
Projektübersicht
Projektübersicht
500 m² für kreative, projektbasierte Teams
Diese Werkstatt folgt fünf Gestaltungsprinzipien für kreative, projektbasierte Teams: Akustische Zonierung statt flächendeckendem Open Space. Modulare Infrastruktur für wachsende Teams. Tägliche Anpassbarkeit an dynamische Arbeitsweisen. Echter Mehrwert gegenüber dem Homeoffice. Raumverteilung für Kollaboration statt Schreibtischarbeit.
Für wen? Für Teams, wo menschliche Kollaboration die Währung ist: Design-Agenturen, Softwareentwicklung, Produktentwicklung, Innovation Labs, Beratungsunternehmen und interdisziplinäre Start-ups. Überall dort, wo Teamgrössen dynamisch wachsen und schrumpfen, wo Prototyping und Workshops zum Alltag gehören, wo physische Begegnung einen echten Unterschied macht.
Das Prinzip: Minimale feste Verbauung (30%) für Infrastruktur – maximale Beweglichkeit (70%) für alle Arbeitsbereiche. Statt flächendeckendem Open Space: gezielte akustische Zonierung durch Raum-in-Raum-Systeme, textile Vorhänge und eine bewegliche Faltwand.
500 m² für kreative, projektbasierte Teams
Diese Werkstatt folgt fünf Gestaltungsprinzipien für kreative, projektbasierte Teams: Akustische Zonierung statt flächendeckendem Open Space. Modulare Infrastruktur für wachsende Teams. Tägliche Anpassbarkeit an dynamische Arbeitsweisen. Echter Mehrwert gegenüber dem Homeoffice. Raumverteilung für Kollaboration statt Schreibtischarbeit.
Für wen? Für Teams, wo menschliche Kollaboration die Währung ist: Design-Agenturen, Softwareentwicklung, Produktentwicklung, Innovation Labs, Beratungsunternehmen und interdisziplinäre Start-ups. Überall dort, wo Teamgrössen dynamisch wachsen und schrumpfen, wo Prototyping und Workshops zum Alltag gehören, wo physische Begegnung einen echten Unterschied macht.
Das Prinzip: Minimale feste Verbauung (30%) für Infrastruktur – maximale Beweglichkeit (70%) für alle Arbeitsbereiche. Statt flächendeckendem Open Space: gezielte akustische Zonierung durch Raum-in-Raum-Systeme, textile Vorhänge und eine bewegliche Faltwand.
500 m² für kreative, projektbasierte Teams
Diese Werkstatt folgt fünf Gestaltungsprinzipien für kreative, projektbasierte Teams: Akustische Zonierung statt flächendeckendem Open Space. Modulare Infrastruktur für wachsende Teams. Tägliche Anpassbarkeit an dynamische Arbeitsweisen. Echter Mehrwert gegenüber dem Homeoffice. Raumverteilung für Kollaboration statt Schreibtischarbeit.
Für wen? Für Teams, wo menschliche Kollaboration die Währung ist: Design-Agenturen, Softwareentwicklung, Produktentwicklung, Innovation Labs, Beratungsunternehmen und interdisziplinäre Start-ups. Überall dort, wo Teamgrössen dynamisch wachsen und schrumpfen, wo Prototyping und Workshops zum Alltag gehören, wo physische Begegnung einen echten Unterschied macht.
Das Prinzip: Minimale feste Verbauung (30%) für Infrastruktur – maximale Beweglichkeit (70%) für alle Arbeitsbereiche. Statt flächendeckendem Open Space: gezielte akustische Zonierung durch Raum-in-Raum-Systeme, textile Vorhänge und eine bewegliche Faltwand.
500 m² für kreative, projektbasierte Teams
Diese Werkstatt folgt fünf Gestaltungsprinzipien für kreative, projektbasierte Teams: Akustische Zonierung statt flächendeckendem Open Space. Modulare Infrastruktur für wachsende Teams. Tägliche Anpassbarkeit an dynamische Arbeitsweisen. Echter Mehrwert gegenüber dem Homeoffice. Raumverteilung für Kollaboration statt Schreibtischarbeit.
Für wen? Für Teams, wo menschliche Kollaboration die Währung ist: Design-Agenturen, Softwareentwicklung, Produktentwicklung, Innovation Labs, Beratungsunternehmen und interdisziplinäre Start-ups. Überall dort, wo Teamgrössen dynamisch wachsen und schrumpfen, wo Prototyping und Workshops zum Alltag gehören, wo physische Begegnung einen echten Unterschied macht.
Das Prinzip: Minimale feste Verbauung (30%) für Infrastruktur – maximale Beweglichkeit (70%) für alle Arbeitsbereiche. Statt flächendeckendem Open Space: gezielte akustische Zonierung durch Raum-in-Raum-Systeme, textile Vorhänge und eine bewegliche Faltwand.
Herausforderungen
Herausforderungen
Herausforderungen
Das Office muss einen Mehrwert schaffen, den das Homeoffice nicht bieten kann
Kreative, projektbasierte Teams arbeiten in kurzen, intensiven Projektphasen von 2-4 Wochen. Ein Projekt startet mit vier Personen, wächst auf zwölf, schrumpft wieder. Da KI zunehmend Routineaufgaben übernimmt, wird menschliche Kollaboration zur wertvollsten Währung – kreative Problemlösung, interdisziplinäres Denken, physisches Prototyping.
Das Homeoffice bleibt für konzentrierte Einzelarbeit relevant. Das Office muss dort überzeugen, wo es das Homeoffice nicht kann: Spontane Begegnungen, kreative Reibung, physische Workshops, Kundenpräsentationen.
Klassische Büros können das nicht abbilden: Feste Teamräume sind oft falsch dimensioniert. Open Space erzeugt Dauerlärm. Organisatorische Veränderungen erfordern teure bauliche Umbauten.
Die zentrale Herausforderung: Wie schaffen wir einen Raum, der gleichzeitig Magnet für dynamische Kollaboration ist und Refugium für konzentrierte Fokusarbeit bleibt – und sich ohne bauliche Eingriffe neu konfigurieren lässt?
Das Office muss einen Mehrwert schaffen, den das Homeoffice nicht bieten kann
Kreative, projektbasierte Teams arbeiten in kurzen, intensiven Projektphasen von 2-4 Wochen. Ein Projekt startet mit vier Personen, wächst auf zwölf, schrumpft wieder. Da KI zunehmend Routineaufgaben übernimmt, wird menschliche Kollaboration zur wertvollsten Währung – kreative Problemlösung, interdisziplinäres Denken, physisches Prototyping.
Das Homeoffice bleibt für konzentrierte Einzelarbeit relevant. Das Office muss dort überzeugen, wo es das Homeoffice nicht kann: Spontane Begegnungen, kreative Reibung, physische Workshops, Kundenpräsentationen.
Klassische Büros können das nicht abbilden: Feste Teamräume sind oft falsch dimensioniert. Open Space erzeugt Dauerlärm. Organisatorische Veränderungen erfordern teure bauliche Umbauten.
Die zentrale Herausforderung: Wie schaffen wir einen Raum, der gleichzeitig Magnet für dynamische Kollaboration ist und Refugium für konzentrierte Fokusarbeit bleibt – und sich ohne bauliche Eingriffe neu konfigurieren lässt?
Das Office muss einen Mehrwert schaffen, den das Homeoffice nicht bieten kann
Kreative, projektbasierte Teams arbeiten in kurzen, intensiven Projektphasen von 2-4 Wochen. Ein Projekt startet mit vier Personen, wächst auf zwölf, schrumpft wieder. Da KI zunehmend Routineaufgaben übernimmt, wird menschliche Kollaboration zur wertvollsten Währung – kreative Problemlösung, interdisziplinäres Denken, physisches Prototyping.
Das Homeoffice bleibt für konzentrierte Einzelarbeit relevant. Das Office muss dort überzeugen, wo es das Homeoffice nicht kann: Spontane Begegnungen, kreative Reibung, physische Workshops, Kundenpräsentationen.
Klassische Büros können das nicht abbilden: Feste Teamräume sind oft falsch dimensioniert. Open Space erzeugt Dauerlärm. Organisatorische Veränderungen erfordern teure bauliche Umbauten.
Die zentrale Herausforderung: Wie schaffen wir einen Raum, der gleichzeitig Magnet für dynamische Kollaboration ist und Refugium für konzentrierte Fokusarbeit bleibt – und sich ohne bauliche Eingriffe neu konfigurieren lässt?
Das Office muss einen Mehrwert schaffen, den das Homeoffice nicht bieten kann
Kreative, projektbasierte Teams arbeiten in kurzen, intensiven Projektphasen von 2-4 Wochen. Ein Projekt startet mit vier Personen, wächst auf zwölf, schrumpft wieder. Da KI zunehmend Routineaufgaben übernimmt, wird menschliche Kollaboration zur wertvollsten Währung – kreative Problemlösung, interdisziplinäres Denken, physisches Prototyping.
Das Homeoffice bleibt für konzentrierte Einzelarbeit relevant. Das Office muss dort überzeugen, wo es das Homeoffice nicht kann: Spontane Begegnungen, kreative Reibung, physische Workshops, Kundenpräsentationen.
Klassische Büros können das nicht abbilden: Feste Teamräume sind oft falsch dimensioniert. Open Space erzeugt Dauerlärm. Organisatorische Veränderungen erfordern teure bauliche Umbauten.
Die zentrale Herausforderung: Wie schaffen wir einen Raum, der gleichzeitig Magnet für dynamische Kollaboration ist und Refugium für konzentrierte Fokusarbeit bleibt – und sich ohne bauliche Eingriffe neu konfigurieren lässt?

Resultate
Resultate
Resultate
Drei flexible Zonen + zwei feste Anker
Die Tankstelle (fest verbaut)
Coffee-Store-Atmosphäre mit integriertem Empfang. Hier startet der Tag mit Espresso und spontanen Begegnungen. Kunden und Team treffen sich zwischen Theke und Sitznischen – kein steriler Empfang, sondern sozialer Magnet. Die Schwelle zwischen „draussen" und „drinnen" verschwindet. Hier passiert, was im Homeoffice unmöglich ist: zufällige Begegnung.
Das Teamfeld (täglich anpassbar)
Zentrale offene Fläche für projektbasierte Zusammenarbeit. Textile Vorhänge ermöglichen akustische Abschottung bei Bedarf. Wird zur Arena umfunktioniert für Kundenpräsentationen oder Events. Transformation in 15 Minuten.
Das Modulfeld (beliebig erweiterbar)
Mobile Systeme schaffen Schallbarrieren ohne feste Wände. Offene Module mit Vorhängen für Kreativ-Sessions, geschlossene Module für konzentriertes Arbeiten, Meetings und vertrauliche Gespräche. Beliebig erweiterbar – mobile Wirtschaftsgüter, die bei Umzügen mitgehen.
Werkfeld + Testfeld = Spielfeld (täglich neu konfigurierbar)
Zwei Zonen, getrennt durch eine bewegliche Faltwand. Werkfeld: 8 Arbeitsplätze für Projektarbeit. Testfeld: Prototyping und Experimente. Im geöffneten Zustand entsteht das Spielfeld – 100 m² zusammenhängende Fläche, auf der sämtliches Mobiliar auf Rollen steht. Je nach Bedarf lässt sich das Setting einstellen: Für Townhalls, grosse Workshops, Kundenpräsentationen oder interdisziplinäre Arbeitssessions.
Die Denkfabrik (fest verbaut)
Akustisch entkoppelt durch feste Wände. Geschützter Rückzugsort für Deep Work – wenn absolute Konzentration gebraucht wird.
Drei flexible Zonen + zwei feste Anker
Die Tankstelle (fest verbaut)
Coffee-Store-Atmosphäre mit integriertem Empfang. Hier startet der Tag mit Espresso und spontanen Begegnungen. Kunden und Team treffen sich zwischen Theke und Sitznischen – kein steriler Empfang, sondern sozialer Magnet. Die Schwelle zwischen „draussen" und „drinnen" verschwindet. Hier passiert, was im Homeoffice unmöglich ist: zufällige Begegnung.
Das Teamfeld (täglich anpassbar)
Zentrale offene Fläche für projektbasierte Zusammenarbeit. Textile Vorhänge ermöglichen akustische Abschottung bei Bedarf. Wird zur Arena umfunktioniert für Kundenpräsentationen oder Events. Transformation in 15 Minuten.
Das Modulfeld (beliebig erweiterbar)
Mobile Systeme schaffen Schallbarrieren ohne feste Wände. Offene Module mit Vorhängen für Kreativ-Sessions, geschlossene Module für konzentriertes Arbeiten, Meetings und vertrauliche Gespräche. Beliebig erweiterbar – mobile Wirtschaftsgüter, die bei Umzügen mitgehen.
Werkfeld + Testfeld = Spielfeld (täglich neu konfigurierbar)
Zwei Zonen, getrennt durch eine bewegliche Faltwand. Werkfeld: 8 Arbeitsplätze für Projektarbeit. Testfeld: Prototyping und Experimente. Im geöffneten Zustand entsteht das Spielfeld – 100 m² zusammenhängende Fläche, auf der sämtliches Mobiliar auf Rollen steht. Je nach Bedarf lässt sich das Setting einstellen: Für Townhalls, grosse Workshops, Kundenpräsentationen oder interdisziplinäre Arbeitssessions.
Die Denkfabrik (fest verbaut)
Akustisch entkoppelt durch feste Wände. Geschützter Rückzugsort für Deep Work – wenn absolute Konzentration gebraucht wird.
Drei flexible Zonen + zwei feste Anker
Die Tankstelle (fest verbaut)
Coffee-Store-Atmosphäre mit integriertem Empfang. Hier startet der Tag mit Espresso und spontanen Begegnungen. Kunden und Team treffen sich zwischen Theke und Sitznischen – kein steriler Empfang, sondern sozialer Magnet. Die Schwelle zwischen „draussen" und „drinnen" verschwindet. Hier passiert, was im Homeoffice unmöglich ist: zufällige Begegnung.
Das Teamfeld (täglich anpassbar)
Zentrale offene Fläche für projektbasierte Zusammenarbeit. Textile Vorhänge ermöglichen akustische Abschottung bei Bedarf. Wird zur Arena umfunktioniert für Kundenpräsentationen oder Events. Transformation in 15 Minuten.
Das Modulfeld (beliebig erweiterbar)
Mobile Systeme schaffen Schallbarrieren ohne feste Wände. Offene Module mit Vorhängen für Kreativ-Sessions, geschlossene Module für konzentriertes Arbeiten, Meetings und vertrauliche Gespräche. Beliebig erweiterbar – mobile Wirtschaftsgüter, die bei Umzügen mitgehen.
Werkfeld + Testfeld = Spielfeld (täglich neu konfigurierbar)
Zwei Zonen, getrennt durch eine bewegliche Faltwand. Werkfeld: 8 Arbeitsplätze für Projektarbeit. Testfeld: Prototyping und Experimente. Im geöffneten Zustand entsteht das Spielfeld – 100 m² zusammenhängende Fläche, auf der sämtliches Mobiliar auf Rollen steht. Je nach Bedarf lässt sich das Setting einstellen: Für Townhalls, grosse Workshops, Kundenpräsentationen oder interdisziplinäre Arbeitssessions.
Die Denkfabrik (fest verbaut)
Akustisch entkoppelt durch feste Wände. Geschützter Rückzugsort für Deep Work – wenn absolute Konzentration gebraucht wird.
Drei flexible Zonen + zwei feste Anker
Die Tankstelle (fest verbaut)
Coffee-Store-Atmosphäre mit integriertem Empfang. Hier startet der Tag mit Espresso und spontanen Begegnungen. Kunden und Team treffen sich zwischen Theke und Sitznischen – kein steriler Empfang, sondern sozialer Magnet. Die Schwelle zwischen „draussen" und „drinnen" verschwindet. Hier passiert, was im Homeoffice unmöglich ist: zufällige Begegnung.
Das Teamfeld (täglich anpassbar)
Zentrale offene Fläche für projektbasierte Zusammenarbeit. Textile Vorhänge ermöglichen akustische Abschottung bei Bedarf. Wird zur Arena umfunktioniert für Kundenpräsentationen oder Events. Transformation in 15 Minuten.
Das Modulfeld (beliebig erweiterbar)
Mobile Systeme schaffen Schallbarrieren ohne feste Wände. Offene Module mit Vorhängen für Kreativ-Sessions, geschlossene Module für konzentriertes Arbeiten, Meetings und vertrauliche Gespräche. Beliebig erweiterbar – mobile Wirtschaftsgüter, die bei Umzügen mitgehen.
Werkfeld + Testfeld = Spielfeld (täglich neu konfigurierbar)
Zwei Zonen, getrennt durch eine bewegliche Faltwand. Werkfeld: 8 Arbeitsplätze für Projektarbeit. Testfeld: Prototyping und Experimente. Im geöffneten Zustand entsteht das Spielfeld – 100 m² zusammenhängende Fläche, auf der sämtliches Mobiliar auf Rollen steht. Je nach Bedarf lässt sich das Setting einstellen: Für Townhalls, grosse Workshops, Kundenpräsentationen oder interdisziplinäre Arbeitssessions.
Die Denkfabrik (fest verbaut)
Akustisch entkoppelt durch feste Wände. Geschützter Rückzugsort für Deep Work – wenn absolute Konzentration gebraucht wird.










Ergebnis
Ergebnis
Ergebnis
Vier Arbeitsmodi – offen, kollaborativ, experimentell, geschützt – die sich täglich oder nach Bedarf neu konfigurieren lassen. Funktionierendes Kabelmanagement bildet die technische Voraussetzung für Mobilität: Bodenkanäle und Deckenauslässe ermöglichen freie Positionierung aller Arbeitsplätze. Die sichtbare Infrastruktur an der Decke erlaubt zukünftige Anpassungen.
Keine Investition in starre Strukturen. Bei organisatorischen Veränderungen lassen sich die flexiblen Zonen komplett neu gestalten – durch Umpositionierung der mobilen Systeme, oder Erweiterung des Modulfelds. Eine Werkstatt, die sich anpasst – nicht an eine Prognose, sondern an die tatsächliche Nutzung.
Die Werkstatt denkt in Situationen, nicht in Zimmern.
Vier Arbeitsmodi – offen, kollaborativ, experimentell, geschützt – die sich täglich oder nach Bedarf neu konfigurieren lassen. Funktionierendes Kabelmanagement bildet die technische Voraussetzung für Mobilität: Bodenkanäle und Deckenauslässe ermöglichen freie Positionierung aller Arbeitsplätze. Die sichtbare Infrastruktur an der Decke erlaubt zukünftige Anpassungen.
Keine Investition in starre Strukturen. Bei organisatorischen Veränderungen lassen sich die flexiblen Zonen komplett neu gestalten – durch Umpositionierung der mobilen Systeme, oder Erweiterung des Modulfelds. Eine Werkstatt, die sich anpasst – nicht an eine Prognose, sondern an die tatsächliche Nutzung.
Die Werkstatt denkt in Situationen, nicht in Zimmern.
Vier Arbeitsmodi – offen, kollaborativ, experimentell, geschützt – die sich täglich oder nach Bedarf neu konfigurieren lassen. Funktionierendes Kabelmanagement bildet die technische Voraussetzung für Mobilität: Bodenkanäle und Deckenauslässe ermöglichen freie Positionierung aller Arbeitsplätze. Die sichtbare Infrastruktur an der Decke erlaubt zukünftige Anpassungen.
Keine Investition in starre Strukturen. Bei organisatorischen Veränderungen lassen sich die flexiblen Zonen komplett neu gestalten – durch Umpositionierung der mobilen Systeme, oder Erweiterung des Modulfelds. Eine Werkstatt, die sich anpasst – nicht an eine Prognose, sondern an die tatsächliche Nutzung.
Die Werkstatt denkt in Situationen, nicht in Zimmern.
Vier Arbeitsmodi – offen, kollaborativ, experimentell, geschützt – die sich täglich oder nach Bedarf neu konfigurieren lassen. Funktionierendes Kabelmanagement bildet die technische Voraussetzung für Mobilität: Bodenkanäle und Deckenauslässe ermöglichen freie Positionierung aller Arbeitsplätze. Die sichtbare Infrastruktur an der Decke erlaubt zukünftige Anpassungen.
Keine Investition in starre Strukturen. Bei organisatorischen Veränderungen lassen sich die flexiblen Zonen komplett neu gestalten – durch Umpositionierung der mobilen Systeme, oder Erweiterung des Modulfelds. Eine Werkstatt, die sich anpasst – nicht an eine Prognose, sondern an die tatsächliche Nutzung.
Die Werkstatt denkt in Situationen, nicht in Zimmern.

Letzte Prototypen
Letzte Prototypen
Letzte Prototypen
Die wandelbare Werkstatt 500 m² für kreative, projektbasierte Teams Fünf Zonen. Drei Flexibilitätsgrade. Für Teams, wo menschliche Kollaboration die Währung ist.
Kunde
—
Zeitraum
2026
—
2026
Rolle
Konzept & Strategie
Projektübersicht
500 m² für kreative, projektbasierte Teams
Diese Werkstatt folgt fünf Gestaltungsprinzipien für kreative, projektbasierte Teams: Akustische Zonierung statt flächendeckendem Open Space. Modulare Infrastruktur für wachsende Teams. Tägliche Anpassbarkeit an dynamische Arbeitsweisen. Echter Mehrwert gegenüber dem Homeoffice. Raumverteilung für Kollaboration statt Schreibtischarbeit.
Für wen? Für Teams, wo menschliche Kollaboration die Währung ist: Design-Agenturen, Softwareentwicklung, Produktentwicklung, Innovation Labs, Beratungsunternehmen und interdisziplinäre Start-ups. Überall dort, wo Teamgrössen dynamisch wachsen und schrumpfen, wo Prototyping und Workshops zum Alltag gehören, wo physische Begegnung einen echten Unterschied macht.
Das Prinzip: Minimale feste Verbauung (30%) für Infrastruktur – maximale Beweglichkeit (70%) für alle Arbeitsbereiche. Statt flächendeckendem Open Space: gezielte akustische Zonierung durch Raum-in-Raum-Systeme, textile Vorhänge und eine bewegliche Faltwand.
Herausforderungen
Das Office muss einen Mehrwert schaffen, den das Homeoffice nicht bieten kann
Kreative, projektbasierte Teams arbeiten in kurzen, intensiven Projektphasen von 2-4 Wochen. Ein Projekt startet mit vier Personen, wächst auf zwölf, schrumpft wieder. Da KI zunehmend Routineaufgaben übernimmt, wird menschliche Kollaboration zur wertvollsten Währung – kreative Problemlösung, interdisziplinäres Denken, physisches Prototyping.
Das Homeoffice bleibt für konzentrierte Einzelarbeit relevant. Das Office muss dort überzeugen, wo es das Homeoffice nicht kann: Spontane Begegnungen, kreative Reibung, physische Workshops, Kundenpräsentationen.
Klassische Büros können das nicht abbilden: Feste Teamräume sind oft falsch dimensioniert. Open Space erzeugt Dauerlärm. Organisatorische Veränderungen erfordern teure bauliche Umbauten.
Die zentrale Herausforderung: Wie schaffen wir einen Raum, der gleichzeitig Magnet für dynamische Kollaboration ist und Refugium für konzentrierte Fokusarbeit bleibt – und sich ohne bauliche Eingriffe neu konfigurieren lässt?




Resultate
Drei flexible Zonen + zwei feste Anker
Die Tankstelle (fest verbaut)
Coffee-Store-Atmosphäre mit integriertem Empfang. Hier startet der Tag mit Espresso und spontanen Begegnungen. Kunden und Team treffen sich zwischen Theke und Sitznischen – kein steriler Empfang, sondern sozialer Magnet. Die Schwelle zwischen „draussen" und „drinnen" verschwindet. Hier passiert, was im Homeoffice unmöglich ist: zufällige Begegnung.
Das Teamfeld (täglich anpassbar)
Zentrale offene Fläche für projektbasierte Zusammenarbeit. Textile Vorhänge ermöglichen akustische Abschottung bei Bedarf. Wird zur Arena umfunktioniert für Kundenpräsentationen oder Events. Transformation in 15 Minuten.
Das Modulfeld (beliebig erweiterbar)
Mobile Systeme schaffen Schallbarrieren ohne feste Wände. Offene Module mit Vorhängen für Kreativ-Sessions, geschlossene Module für konzentriertes Arbeiten, Meetings und vertrauliche Gespräche. Beliebig erweiterbar – mobile Wirtschaftsgüter, die bei Umzügen mitgehen.
Werkfeld + Testfeld = Spielfeld (täglich neu konfigurierbar)
Zwei Zonen, getrennt durch eine bewegliche Faltwand. Werkfeld: 8 Arbeitsplätze für Projektarbeit. Testfeld: Prototyping und Experimente. Im geöffneten Zustand entsteht das Spielfeld – 100 m² zusammenhängende Fläche, auf der sämtliches Mobiliar auf Rollen steht. Je nach Bedarf lässt sich das Setting einstellen: Für Townhalls, grosse Workshops, Kundenpräsentationen oder interdisziplinäre Arbeitssessions.
Die Denkfabrik (fest verbaut)
Akustisch entkoppelt durch feste Wände. Geschützter Rückzugsort für Deep Work – wenn absolute Konzentration gebraucht wird.
Ergebnis
Vier Arbeitsmodi – offen, kollaborativ, experimentell, geschützt – die sich täglich oder nach Bedarf neu konfigurieren lassen. Funktionierendes Kabelmanagement bildet die technische Voraussetzung für Mobilität: Bodenkanäle und Deckenauslässe ermöglichen freie Positionierung aller Arbeitsplätze. Die sichtbare Infrastruktur an der Decke erlaubt zukünftige Anpassungen.
Keine Investition in starre Strukturen. Bei organisatorischen Veränderungen lassen sich die flexiblen Zonen komplett neu gestalten – durch Umpositionierung der mobilen Systeme, oder Erweiterung des Modulfelds. Eine Werkstatt, die sich anpasst – nicht an eine Prognose, sondern an die tatsächliche Nutzung.
Die Werkstatt denkt in Situationen, nicht in Zimmern.








Letzte Prototypen
Die wandelbare Werkstatt 500 m² für kreative, projektbasierte Teams Fünf Zonen. Drei Flexibilitätsgrade. Für Teams, wo menschliche Kollaboration die Währung ist.
Die wandelbare Werkstatt 500 m² für kreative, projektbasierte Teams Fünf Zonen. Drei Flexibilitätsgrade. Für Teams, wo menschliche Kollaboration die Währung ist.
Die wandelbare Werkstatt 500 m² für kreative, projektbasierte Teams Fünf Zonen. Drei Flexibilitätsgrade. Für Teams, wo menschliche Kollaboration die Währung ist.
Kunde
Kunde
Kunde
—
—
—
Zeitraum
Zeitraum
Zeitraum
2026
2026
2026
—
—
—
2026
2026
2026
Rolle
Rolle
Rolle
Konzept & Strategie
Konzept & Strategie
Konzept & Strategie
Projektübersicht
Projektübersicht
Projektübersicht
500 m² für kreative, projektbasierte Teams
Diese Werkstatt folgt fünf Gestaltungsprinzipien für kreative, projektbasierte Teams: Akustische Zonierung statt flächendeckendem Open Space. Modulare Infrastruktur für wachsende Teams. Tägliche Anpassbarkeit an dynamische Arbeitsweisen. Echter Mehrwert gegenüber dem Homeoffice. Raumverteilung für Kollaboration statt Schreibtischarbeit.
Für wen? Für Teams, wo menschliche Kollaboration die Währung ist: Design-Agenturen, Softwareentwicklung, Produktentwicklung, Innovation Labs, Beratungsunternehmen und interdisziplinäre Start-ups. Überall dort, wo Teamgrössen dynamisch wachsen und schrumpfen, wo Prototyping und Workshops zum Alltag gehören, wo physische Begegnung einen echten Unterschied macht.
Das Prinzip: Minimale feste Verbauung (30%) für Infrastruktur – maximale Beweglichkeit (70%) für alle Arbeitsbereiche. Statt flächendeckendem Open Space: gezielte akustische Zonierung durch Raum-in-Raum-Systeme, textile Vorhänge und eine bewegliche Faltwand.
500 m² für kreative, projektbasierte Teams
Diese Werkstatt folgt fünf Gestaltungsprinzipien für kreative, projektbasierte Teams: Akustische Zonierung statt flächendeckendem Open Space. Modulare Infrastruktur für wachsende Teams. Tägliche Anpassbarkeit an dynamische Arbeitsweisen. Echter Mehrwert gegenüber dem Homeoffice. Raumverteilung für Kollaboration statt Schreibtischarbeit.
Für wen? Für Teams, wo menschliche Kollaboration die Währung ist: Design-Agenturen, Softwareentwicklung, Produktentwicklung, Innovation Labs, Beratungsunternehmen und interdisziplinäre Start-ups. Überall dort, wo Teamgrössen dynamisch wachsen und schrumpfen, wo Prototyping und Workshops zum Alltag gehören, wo physische Begegnung einen echten Unterschied macht.
Das Prinzip: Minimale feste Verbauung (30%) für Infrastruktur – maximale Beweglichkeit (70%) für alle Arbeitsbereiche. Statt flächendeckendem Open Space: gezielte akustische Zonierung durch Raum-in-Raum-Systeme, textile Vorhänge und eine bewegliche Faltwand.
500 m² für kreative, projektbasierte Teams
Diese Werkstatt folgt fünf Gestaltungsprinzipien für kreative, projektbasierte Teams: Akustische Zonierung statt flächendeckendem Open Space. Modulare Infrastruktur für wachsende Teams. Tägliche Anpassbarkeit an dynamische Arbeitsweisen. Echter Mehrwert gegenüber dem Homeoffice. Raumverteilung für Kollaboration statt Schreibtischarbeit.
Für wen? Für Teams, wo menschliche Kollaboration die Währung ist: Design-Agenturen, Softwareentwicklung, Produktentwicklung, Innovation Labs, Beratungsunternehmen und interdisziplinäre Start-ups. Überall dort, wo Teamgrössen dynamisch wachsen und schrumpfen, wo Prototyping und Workshops zum Alltag gehören, wo physische Begegnung einen echten Unterschied macht.
Das Prinzip: Minimale feste Verbauung (30%) für Infrastruktur – maximale Beweglichkeit (70%) für alle Arbeitsbereiche. Statt flächendeckendem Open Space: gezielte akustische Zonierung durch Raum-in-Raum-Systeme, textile Vorhänge und eine bewegliche Faltwand.
500 m² für kreative, projektbasierte Teams
Diese Werkstatt folgt fünf Gestaltungsprinzipien für kreative, projektbasierte Teams: Akustische Zonierung statt flächendeckendem Open Space. Modulare Infrastruktur für wachsende Teams. Tägliche Anpassbarkeit an dynamische Arbeitsweisen. Echter Mehrwert gegenüber dem Homeoffice. Raumverteilung für Kollaboration statt Schreibtischarbeit.
Für wen? Für Teams, wo menschliche Kollaboration die Währung ist: Design-Agenturen, Softwareentwicklung, Produktentwicklung, Innovation Labs, Beratungsunternehmen und interdisziplinäre Start-ups. Überall dort, wo Teamgrössen dynamisch wachsen und schrumpfen, wo Prototyping und Workshops zum Alltag gehören, wo physische Begegnung einen echten Unterschied macht.
Das Prinzip: Minimale feste Verbauung (30%) für Infrastruktur – maximale Beweglichkeit (70%) für alle Arbeitsbereiche. Statt flächendeckendem Open Space: gezielte akustische Zonierung durch Raum-in-Raum-Systeme, textile Vorhänge und eine bewegliche Faltwand.
Herausforderungen
Herausforderungen
Herausforderungen
Das Office muss einen Mehrwert schaffen, den das Homeoffice nicht bieten kann
Kreative, projektbasierte Teams arbeiten in kurzen, intensiven Projektphasen von 2-4 Wochen. Ein Projekt startet mit vier Personen, wächst auf zwölf, schrumpft wieder. Da KI zunehmend Routineaufgaben übernimmt, wird menschliche Kollaboration zur wertvollsten Währung – kreative Problemlösung, interdisziplinäres Denken, physisches Prototyping.
Das Homeoffice bleibt für konzentrierte Einzelarbeit relevant. Das Office muss dort überzeugen, wo es das Homeoffice nicht kann: Spontane Begegnungen, kreative Reibung, physische Workshops, Kundenpräsentationen.
Klassische Büros können das nicht abbilden: Feste Teamräume sind oft falsch dimensioniert. Open Space erzeugt Dauerlärm. Organisatorische Veränderungen erfordern teure bauliche Umbauten.
Die zentrale Herausforderung: Wie schaffen wir einen Raum, der gleichzeitig Magnet für dynamische Kollaboration ist und Refugium für konzentrierte Fokusarbeit bleibt – und sich ohne bauliche Eingriffe neu konfigurieren lässt?
Das Office muss einen Mehrwert schaffen, den das Homeoffice nicht bieten kann
Kreative, projektbasierte Teams arbeiten in kurzen, intensiven Projektphasen von 2-4 Wochen. Ein Projekt startet mit vier Personen, wächst auf zwölf, schrumpft wieder. Da KI zunehmend Routineaufgaben übernimmt, wird menschliche Kollaboration zur wertvollsten Währung – kreative Problemlösung, interdisziplinäres Denken, physisches Prototyping.
Das Homeoffice bleibt für konzentrierte Einzelarbeit relevant. Das Office muss dort überzeugen, wo es das Homeoffice nicht kann: Spontane Begegnungen, kreative Reibung, physische Workshops, Kundenpräsentationen.
Klassische Büros können das nicht abbilden: Feste Teamräume sind oft falsch dimensioniert. Open Space erzeugt Dauerlärm. Organisatorische Veränderungen erfordern teure bauliche Umbauten.
Die zentrale Herausforderung: Wie schaffen wir einen Raum, der gleichzeitig Magnet für dynamische Kollaboration ist und Refugium für konzentrierte Fokusarbeit bleibt – und sich ohne bauliche Eingriffe neu konfigurieren lässt?
Das Office muss einen Mehrwert schaffen, den das Homeoffice nicht bieten kann
Kreative, projektbasierte Teams arbeiten in kurzen, intensiven Projektphasen von 2-4 Wochen. Ein Projekt startet mit vier Personen, wächst auf zwölf, schrumpft wieder. Da KI zunehmend Routineaufgaben übernimmt, wird menschliche Kollaboration zur wertvollsten Währung – kreative Problemlösung, interdisziplinäres Denken, physisches Prototyping.
Das Homeoffice bleibt für konzentrierte Einzelarbeit relevant. Das Office muss dort überzeugen, wo es das Homeoffice nicht kann: Spontane Begegnungen, kreative Reibung, physische Workshops, Kundenpräsentationen.
Klassische Büros können das nicht abbilden: Feste Teamräume sind oft falsch dimensioniert. Open Space erzeugt Dauerlärm. Organisatorische Veränderungen erfordern teure bauliche Umbauten.
Die zentrale Herausforderung: Wie schaffen wir einen Raum, der gleichzeitig Magnet für dynamische Kollaboration ist und Refugium für konzentrierte Fokusarbeit bleibt – und sich ohne bauliche Eingriffe neu konfigurieren lässt?
Das Office muss einen Mehrwert schaffen, den das Homeoffice nicht bieten kann
Kreative, projektbasierte Teams arbeiten in kurzen, intensiven Projektphasen von 2-4 Wochen. Ein Projekt startet mit vier Personen, wächst auf zwölf, schrumpft wieder. Da KI zunehmend Routineaufgaben übernimmt, wird menschliche Kollaboration zur wertvollsten Währung – kreative Problemlösung, interdisziplinäres Denken, physisches Prototyping.
Das Homeoffice bleibt für konzentrierte Einzelarbeit relevant. Das Office muss dort überzeugen, wo es das Homeoffice nicht kann: Spontane Begegnungen, kreative Reibung, physische Workshops, Kundenpräsentationen.
Klassische Büros können das nicht abbilden: Feste Teamräume sind oft falsch dimensioniert. Open Space erzeugt Dauerlärm. Organisatorische Veränderungen erfordern teure bauliche Umbauten.
Die zentrale Herausforderung: Wie schaffen wir einen Raum, der gleichzeitig Magnet für dynamische Kollaboration ist und Refugium für konzentrierte Fokusarbeit bleibt – und sich ohne bauliche Eingriffe neu konfigurieren lässt?

Resultate
Resultate
Resultate
Drei flexible Zonen + zwei feste Anker
Die Tankstelle (fest verbaut)
Coffee-Store-Atmosphäre mit integriertem Empfang. Hier startet der Tag mit Espresso und spontanen Begegnungen. Kunden und Team treffen sich zwischen Theke und Sitznischen – kein steriler Empfang, sondern sozialer Magnet. Die Schwelle zwischen „draussen" und „drinnen" verschwindet. Hier passiert, was im Homeoffice unmöglich ist: zufällige Begegnung.
Das Teamfeld (täglich anpassbar)
Zentrale offene Fläche für projektbasierte Zusammenarbeit. Textile Vorhänge ermöglichen akustische Abschottung bei Bedarf. Wird zur Arena umfunktioniert für Kundenpräsentationen oder Events. Transformation in 15 Minuten.
Das Modulfeld (beliebig erweiterbar)
Mobile Systeme schaffen Schallbarrieren ohne feste Wände. Offene Module mit Vorhängen für Kreativ-Sessions, geschlossene Module für konzentriertes Arbeiten, Meetings und vertrauliche Gespräche. Beliebig erweiterbar – mobile Wirtschaftsgüter, die bei Umzügen mitgehen.
Werkfeld + Testfeld = Spielfeld (täglich neu konfigurierbar)
Zwei Zonen, getrennt durch eine bewegliche Faltwand. Werkfeld: 8 Arbeitsplätze für Projektarbeit. Testfeld: Prototyping und Experimente. Im geöffneten Zustand entsteht das Spielfeld – 100 m² zusammenhängende Fläche, auf der sämtliches Mobiliar auf Rollen steht. Je nach Bedarf lässt sich das Setting einstellen: Für Townhalls, grosse Workshops, Kundenpräsentationen oder interdisziplinäre Arbeitssessions.
Die Denkfabrik (fest verbaut)
Akustisch entkoppelt durch feste Wände. Geschützter Rückzugsort für Deep Work – wenn absolute Konzentration gebraucht wird.
Drei flexible Zonen + zwei feste Anker
Die Tankstelle (fest verbaut)
Coffee-Store-Atmosphäre mit integriertem Empfang. Hier startet der Tag mit Espresso und spontanen Begegnungen. Kunden und Team treffen sich zwischen Theke und Sitznischen – kein steriler Empfang, sondern sozialer Magnet. Die Schwelle zwischen „draussen" und „drinnen" verschwindet. Hier passiert, was im Homeoffice unmöglich ist: zufällige Begegnung.
Das Teamfeld (täglich anpassbar)
Zentrale offene Fläche für projektbasierte Zusammenarbeit. Textile Vorhänge ermöglichen akustische Abschottung bei Bedarf. Wird zur Arena umfunktioniert für Kundenpräsentationen oder Events. Transformation in 15 Minuten.
Das Modulfeld (beliebig erweiterbar)
Mobile Systeme schaffen Schallbarrieren ohne feste Wände. Offene Module mit Vorhängen für Kreativ-Sessions, geschlossene Module für konzentriertes Arbeiten, Meetings und vertrauliche Gespräche. Beliebig erweiterbar – mobile Wirtschaftsgüter, die bei Umzügen mitgehen.
Werkfeld + Testfeld = Spielfeld (täglich neu konfigurierbar)
Zwei Zonen, getrennt durch eine bewegliche Faltwand. Werkfeld: 8 Arbeitsplätze für Projektarbeit. Testfeld: Prototyping und Experimente. Im geöffneten Zustand entsteht das Spielfeld – 100 m² zusammenhängende Fläche, auf der sämtliches Mobiliar auf Rollen steht. Je nach Bedarf lässt sich das Setting einstellen: Für Townhalls, grosse Workshops, Kundenpräsentationen oder interdisziplinäre Arbeitssessions.
Die Denkfabrik (fest verbaut)
Akustisch entkoppelt durch feste Wände. Geschützter Rückzugsort für Deep Work – wenn absolute Konzentration gebraucht wird.
Drei flexible Zonen + zwei feste Anker
Die Tankstelle (fest verbaut)
Coffee-Store-Atmosphäre mit integriertem Empfang. Hier startet der Tag mit Espresso und spontanen Begegnungen. Kunden und Team treffen sich zwischen Theke und Sitznischen – kein steriler Empfang, sondern sozialer Magnet. Die Schwelle zwischen „draussen" und „drinnen" verschwindet. Hier passiert, was im Homeoffice unmöglich ist: zufällige Begegnung.
Das Teamfeld (täglich anpassbar)
Zentrale offene Fläche für projektbasierte Zusammenarbeit. Textile Vorhänge ermöglichen akustische Abschottung bei Bedarf. Wird zur Arena umfunktioniert für Kundenpräsentationen oder Events. Transformation in 15 Minuten.
Das Modulfeld (beliebig erweiterbar)
Mobile Systeme schaffen Schallbarrieren ohne feste Wände. Offene Module mit Vorhängen für Kreativ-Sessions, geschlossene Module für konzentriertes Arbeiten, Meetings und vertrauliche Gespräche. Beliebig erweiterbar – mobile Wirtschaftsgüter, die bei Umzügen mitgehen.
Werkfeld + Testfeld = Spielfeld (täglich neu konfigurierbar)
Zwei Zonen, getrennt durch eine bewegliche Faltwand. Werkfeld: 8 Arbeitsplätze für Projektarbeit. Testfeld: Prototyping und Experimente. Im geöffneten Zustand entsteht das Spielfeld – 100 m² zusammenhängende Fläche, auf der sämtliches Mobiliar auf Rollen steht. Je nach Bedarf lässt sich das Setting einstellen: Für Townhalls, grosse Workshops, Kundenpräsentationen oder interdisziplinäre Arbeitssessions.
Die Denkfabrik (fest verbaut)
Akustisch entkoppelt durch feste Wände. Geschützter Rückzugsort für Deep Work – wenn absolute Konzentration gebraucht wird.
Drei flexible Zonen + zwei feste Anker
Die Tankstelle (fest verbaut)
Coffee-Store-Atmosphäre mit integriertem Empfang. Hier startet der Tag mit Espresso und spontanen Begegnungen. Kunden und Team treffen sich zwischen Theke und Sitznischen – kein steriler Empfang, sondern sozialer Magnet. Die Schwelle zwischen „draussen" und „drinnen" verschwindet. Hier passiert, was im Homeoffice unmöglich ist: zufällige Begegnung.
Das Teamfeld (täglich anpassbar)
Zentrale offene Fläche für projektbasierte Zusammenarbeit. Textile Vorhänge ermöglichen akustische Abschottung bei Bedarf. Wird zur Arena umfunktioniert für Kundenpräsentationen oder Events. Transformation in 15 Minuten.
Das Modulfeld (beliebig erweiterbar)
Mobile Systeme schaffen Schallbarrieren ohne feste Wände. Offene Module mit Vorhängen für Kreativ-Sessions, geschlossene Module für konzentriertes Arbeiten, Meetings und vertrauliche Gespräche. Beliebig erweiterbar – mobile Wirtschaftsgüter, die bei Umzügen mitgehen.
Werkfeld + Testfeld = Spielfeld (täglich neu konfigurierbar)
Zwei Zonen, getrennt durch eine bewegliche Faltwand. Werkfeld: 8 Arbeitsplätze für Projektarbeit. Testfeld: Prototyping und Experimente. Im geöffneten Zustand entsteht das Spielfeld – 100 m² zusammenhängende Fläche, auf der sämtliches Mobiliar auf Rollen steht. Je nach Bedarf lässt sich das Setting einstellen: Für Townhalls, grosse Workshops, Kundenpräsentationen oder interdisziplinäre Arbeitssessions.
Die Denkfabrik (fest verbaut)
Akustisch entkoppelt durch feste Wände. Geschützter Rückzugsort für Deep Work – wenn absolute Konzentration gebraucht wird.










Ergebnis
Ergebnis
Ergebnis
Vier Arbeitsmodi – offen, kollaborativ, experimentell, geschützt – die sich täglich oder nach Bedarf neu konfigurieren lassen. Funktionierendes Kabelmanagement bildet die technische Voraussetzung für Mobilität: Bodenkanäle und Deckenauslässe ermöglichen freie Positionierung aller Arbeitsplätze. Die sichtbare Infrastruktur an der Decke erlaubt zukünftige Anpassungen.
Keine Investition in starre Strukturen. Bei organisatorischen Veränderungen lassen sich die flexiblen Zonen komplett neu gestalten – durch Umpositionierung der mobilen Systeme, oder Erweiterung des Modulfelds. Eine Werkstatt, die sich anpasst – nicht an eine Prognose, sondern an die tatsächliche Nutzung.
Die Werkstatt denkt in Situationen, nicht in Zimmern.
Vier Arbeitsmodi – offen, kollaborativ, experimentell, geschützt – die sich täglich oder nach Bedarf neu konfigurieren lassen. Funktionierendes Kabelmanagement bildet die technische Voraussetzung für Mobilität: Bodenkanäle und Deckenauslässe ermöglichen freie Positionierung aller Arbeitsplätze. Die sichtbare Infrastruktur an der Decke erlaubt zukünftige Anpassungen.
Keine Investition in starre Strukturen. Bei organisatorischen Veränderungen lassen sich die flexiblen Zonen komplett neu gestalten – durch Umpositionierung der mobilen Systeme, oder Erweiterung des Modulfelds. Eine Werkstatt, die sich anpasst – nicht an eine Prognose, sondern an die tatsächliche Nutzung.
Die Werkstatt denkt in Situationen, nicht in Zimmern.
Vier Arbeitsmodi – offen, kollaborativ, experimentell, geschützt – die sich täglich oder nach Bedarf neu konfigurieren lassen. Funktionierendes Kabelmanagement bildet die technische Voraussetzung für Mobilität: Bodenkanäle und Deckenauslässe ermöglichen freie Positionierung aller Arbeitsplätze. Die sichtbare Infrastruktur an der Decke erlaubt zukünftige Anpassungen.
Keine Investition in starre Strukturen. Bei organisatorischen Veränderungen lassen sich die flexiblen Zonen komplett neu gestalten – durch Umpositionierung der mobilen Systeme, oder Erweiterung des Modulfelds. Eine Werkstatt, die sich anpasst – nicht an eine Prognose, sondern an die tatsächliche Nutzung.
Die Werkstatt denkt in Situationen, nicht in Zimmern.
Vier Arbeitsmodi – offen, kollaborativ, experimentell, geschützt – die sich täglich oder nach Bedarf neu konfigurieren lassen. Funktionierendes Kabelmanagement bildet die technische Voraussetzung für Mobilität: Bodenkanäle und Deckenauslässe ermöglichen freie Positionierung aller Arbeitsplätze. Die sichtbare Infrastruktur an der Decke erlaubt zukünftige Anpassungen.
Keine Investition in starre Strukturen. Bei organisatorischen Veränderungen lassen sich die flexiblen Zonen komplett neu gestalten – durch Umpositionierung der mobilen Systeme, oder Erweiterung des Modulfelds. Eine Werkstatt, die sich anpasst – nicht an eine Prognose, sondern an die tatsächliche Nutzung.
Die Werkstatt denkt in Situationen, nicht in Zimmern.



