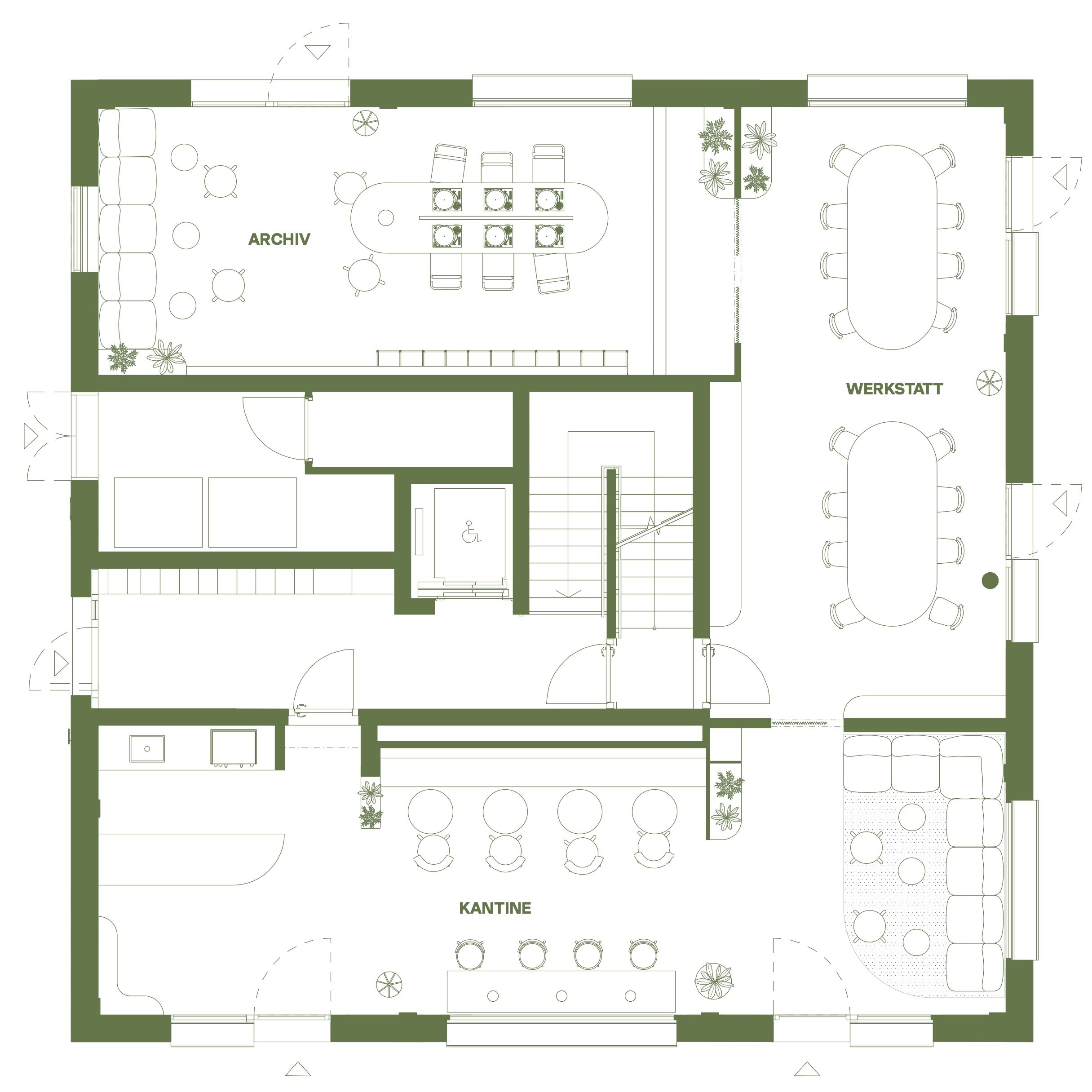
Offline Club 147 m² in Zürich-Altstetten Ein Konzept für den dritten Ort. Der U-förmige Grundriss verbindet öffentliches Café mit privaten Members-Bereichen für haptisches Gestalten und kulturellen Austausch.
Kunde
—
Zeitraum
2026
—
2026
Rolle
Konzept und Strategie
Projektübersicht
147 m² Dritter Ort
Ein hybrider Ort zwischen öffentlichem Café und privatem Mitgliederclub. Drei Zonen mit unterschiedlicher Zugänglichkeit: Öffentliches Café als Schnittstelle zur Stadt. Werkraum für haptisches Gestalten. Archiv für analoge Medien und kulturellen Austausch.
Für wen? Für alle, die zwischen digitalem Dauerlärm und physischer Entfremdung einen dritten Ort suchen. Der Raum bedient drei Grundbedürfnisse: Begegnung, Machen, Eintauchen.
Das Prinzip: Der U-förmige Grundriss wird zum räumlichen Gradient – von öffentlich zu privat, von laut zu still. Textile Vorhänge schaffen Zonierung ohne harte Grenzen.
Herausforderungen
Die Rückgewinnung der Präsenz in einer hyper-digitalen Ära
Die Grenzen zwischen Arbeit, Freizeit und digitalem Konsum haben sich aufgelöst. Unsere Aufmerksamkeit ist zu einer der knappsten Ressourcen geworden. Wir sind virtuell überall gleichzeitig, aber physisch immer seltener wirklich präsent.
Der dritte Ort – zwischen Zuhause und Arbeit – ist weitgehend verschwunden. Orte für zufällige Begegnung ohne Zeitdruck, für kulturellen Austausch ohne digitale Ablenkung, für haptisches Arbeiten mit analogen Materialien fehlen in unseren Städten.
Die Herausforderung: Wie gestalten wir einen Raum, der den „Always-On"-Modus des Gehirns sanft herunterfährt und echte soziale Interaktion sowie tiefe Immersion wieder möglich macht?




Resultate
Drei Zonen der Entschleunigung
Die KANTINE (Public): Die Schnittstelle zur Stadt. 61 m² für zufällige Begegnung. Offener, kommunikativer Raum für Espresso und spontane Gespräche. Niedrige Schwelle, kein Zeitdruck.
Die WERKSTATT (Members Only): Der Übergang vom Digitalen zum Physischen. 44 m² mit zwei zentralen Community-Tables. Hier wird gebastelt, gezeichnet, gebaut. Werkzeuge und Materialien sind frei zugänglich. Soziale Interaktion durch gemeinsames Machen. Textile Vorhänge schaffen akustische Abschottung von der Kantine. Handys bleiben draussen.
Das ARCHIV (Members Only): Analoger Ort für kulturellen Austausch und persönliches Versinken. 42 m² mit Regalen voller Bücher und Schallplatten. Plattenspieler – Kopfhörer für private Listening Sessions, Anlage für gemeinsames Hören. Sitzlandschaften zum Lesen, zentraler Tisch für Gespräche über Musik und Bücher. Stille und Austausch wechseln sich ab. Handys bleiben draussen.
Ergebnis
Der U-förmige Grundriss schafft drei Intensitätsstufen – öffentlich, produktiv, kontemplativ. Von der lauten Strasse über die produktive Mitte bis zum geschützten Archiv.
Die Kantine ist öffentliches Café. Werkstatt und Archiv erfordern Mitgliedschaft. Zwei Geschäftsmodelle unter einem Dach schaffen Balance zwischen Durchlässigkeit und Commitment.
Ein Club, der sich anpasst – nicht an Trends, sondern an menschliche Grundbedürfnisse: Begegnung, Machen, Eintauchen.
Der Offline Club denkt in Intensitäten, nicht in Funktionen.








Letzte Prototypen
Offline Club 147 m² in Zürich-Altstetten Ein Konzept für den dritten Ort. Der U-förmige Grundriss verbindet öffentliches Café mit privaten Members-Bereichen für haptisches Gestalten und kulturellen Austausch.
Offline Club 147 m² in Zürich-Altstetten Ein Konzept für den dritten Ort. Der U-förmige Grundriss verbindet öffentliches Café mit privaten Members-Bereichen für haptisches Gestalten und kulturellen Austausch.
Offline Club 147 m² in Zürich-Altstetten Ein Konzept für den dritten Ort. Der U-förmige Grundriss verbindet öffentliches Café mit privaten Members-Bereichen für haptisches Gestalten und kulturellen Austausch.
Kunde
Kunde
Kunde
—
—
—
Zeitraum
Zeitraum
Zeitraum
2026
2026
2026
—
—
—
2026
2026
2026
Rolle
Rolle
Rolle
Konzept und Strategie
Konzept und Strategie
Konzept und Strategie
Projektübersicht
Projektübersicht
Projektübersicht
147 m² Dritter Ort
Ein hybrider Ort zwischen öffentlichem Café und privatem Mitgliederclub. Drei Zonen mit unterschiedlicher Zugänglichkeit: Öffentliches Café als Schnittstelle zur Stadt. Werkraum für haptisches Gestalten. Archiv für analoge Medien und kulturellen Austausch.
Für wen? Für alle, die zwischen digitalem Dauerlärm und physischer Entfremdung einen dritten Ort suchen. Der Raum bedient drei Grundbedürfnisse: Begegnung, Machen, Eintauchen.
Das Prinzip: Der U-förmige Grundriss wird zum räumlichen Gradient – von öffentlich zu privat, von laut zu still. Textile Vorhänge schaffen Zonierung ohne harte Grenzen.
147 m² Dritter Ort
Ein hybrider Ort zwischen öffentlichem Café und privatem Mitgliederclub. Drei Zonen mit unterschiedlicher Zugänglichkeit: Öffentliches Café als Schnittstelle zur Stadt. Werkraum für haptisches Gestalten. Archiv für analoge Medien und kulturellen Austausch.
Für wen? Für alle, die zwischen digitalem Dauerlärm und physischer Entfremdung einen dritten Ort suchen. Der Raum bedient drei Grundbedürfnisse: Begegnung, Machen, Eintauchen.
Das Prinzip: Der U-förmige Grundriss wird zum räumlichen Gradient – von öffentlich zu privat, von laut zu still. Textile Vorhänge schaffen Zonierung ohne harte Grenzen.
147 m² Dritter Ort
Ein hybrider Ort zwischen öffentlichem Café und privatem Mitgliederclub. Drei Zonen mit unterschiedlicher Zugänglichkeit: Öffentliches Café als Schnittstelle zur Stadt. Werkraum für haptisches Gestalten. Archiv für analoge Medien und kulturellen Austausch.
Für wen? Für alle, die zwischen digitalem Dauerlärm und physischer Entfremdung einen dritten Ort suchen. Der Raum bedient drei Grundbedürfnisse: Begegnung, Machen, Eintauchen.
Das Prinzip: Der U-förmige Grundriss wird zum räumlichen Gradient – von öffentlich zu privat, von laut zu still. Textile Vorhänge schaffen Zonierung ohne harte Grenzen.
147 m² Dritter Ort
Ein hybrider Ort zwischen öffentlichem Café und privatem Mitgliederclub. Drei Zonen mit unterschiedlicher Zugänglichkeit: Öffentliches Café als Schnittstelle zur Stadt. Werkraum für haptisches Gestalten. Archiv für analoge Medien und kulturellen Austausch.
Für wen? Für alle, die zwischen digitalem Dauerlärm und physischer Entfremdung einen dritten Ort suchen. Der Raum bedient drei Grundbedürfnisse: Begegnung, Machen, Eintauchen.
Das Prinzip: Der U-förmige Grundriss wird zum räumlichen Gradient – von öffentlich zu privat, von laut zu still. Textile Vorhänge schaffen Zonierung ohne harte Grenzen.
Herausforderungen
Herausforderungen
Herausforderungen
Die Rückgewinnung der Präsenz in einer hyper-digitalen Ära
Die Grenzen zwischen Arbeit, Freizeit und digitalem Konsum haben sich aufgelöst. Unsere Aufmerksamkeit ist zu einer der knappsten Ressourcen geworden. Wir sind virtuell überall gleichzeitig, aber physisch immer seltener wirklich präsent.
Der dritte Ort – zwischen Zuhause und Arbeit – ist weitgehend verschwunden. Orte für zufällige Begegnung ohne Zeitdruck, für kulturellen Austausch ohne digitale Ablenkung, für haptisches Arbeiten mit analogen Materialien fehlen in unseren Städten.
Die Herausforderung: Wie gestalten wir einen Raum, der den „Always-On"-Modus des Gehirns sanft herunterfährt und echte soziale Interaktion sowie tiefe Immersion wieder möglich macht?
Die Rückgewinnung der Präsenz in einer hyper-digitalen Ära
Die Grenzen zwischen Arbeit, Freizeit und digitalem Konsum haben sich aufgelöst. Unsere Aufmerksamkeit ist zu einer der knappsten Ressourcen geworden. Wir sind virtuell überall gleichzeitig, aber physisch immer seltener wirklich präsent.
Der dritte Ort – zwischen Zuhause und Arbeit – ist weitgehend verschwunden. Orte für zufällige Begegnung ohne Zeitdruck, für kulturellen Austausch ohne digitale Ablenkung, für haptisches Arbeiten mit analogen Materialien fehlen in unseren Städten.
Die Herausforderung: Wie gestalten wir einen Raum, der den „Always-On"-Modus des Gehirns sanft herunterfährt und echte soziale Interaktion sowie tiefe Immersion wieder möglich macht?
Die Rückgewinnung der Präsenz in einer hyper-digitalen Ära
Die Grenzen zwischen Arbeit, Freizeit und digitalem Konsum haben sich aufgelöst. Unsere Aufmerksamkeit ist zu einer der knappsten Ressourcen geworden. Wir sind virtuell überall gleichzeitig, aber physisch immer seltener wirklich präsent.
Der dritte Ort – zwischen Zuhause und Arbeit – ist weitgehend verschwunden. Orte für zufällige Begegnung ohne Zeitdruck, für kulturellen Austausch ohne digitale Ablenkung, für haptisches Arbeiten mit analogen Materialien fehlen in unseren Städten.
Die Herausforderung: Wie gestalten wir einen Raum, der den „Always-On"-Modus des Gehirns sanft herunterfährt und echte soziale Interaktion sowie tiefe Immersion wieder möglich macht?
Die Rückgewinnung der Präsenz in einer hyper-digitalen Ära
Die Grenzen zwischen Arbeit, Freizeit und digitalem Konsum haben sich aufgelöst. Unsere Aufmerksamkeit ist zu einer der knappsten Ressourcen geworden. Wir sind virtuell überall gleichzeitig, aber physisch immer seltener wirklich präsent.
Der dritte Ort – zwischen Zuhause und Arbeit – ist weitgehend verschwunden. Orte für zufällige Begegnung ohne Zeitdruck, für kulturellen Austausch ohne digitale Ablenkung, für haptisches Arbeiten mit analogen Materialien fehlen in unseren Städten.
Die Herausforderung: Wie gestalten wir einen Raum, der den „Always-On"-Modus des Gehirns sanft herunterfährt und echte soziale Interaktion sowie tiefe Immersion wieder möglich macht?

Resultate
Resultate
Resultate
Drei Zonen der Entschleunigung
Die KANTINE (Public): Die Schnittstelle zur Stadt. 61 m² für zufällige Begegnung. Offener, kommunikativer Raum für Espresso und spontane Gespräche. Niedrige Schwelle, kein Zeitdruck.
Die WERKSTATT (Members Only): Der Übergang vom Digitalen zum Physischen. 44 m² mit zwei zentralen Community-Tables. Hier wird gebastelt, gezeichnet, gebaut. Werkzeuge und Materialien sind frei zugänglich. Soziale Interaktion durch gemeinsames Machen. Textile Vorhänge schaffen akustische Abschottung von der Kantine. Handys bleiben draussen.
Das ARCHIV (Members Only): Analoger Ort für kulturellen Austausch und persönliches Versinken. 42 m² mit Regalen voller Bücher und Schallplatten. Plattenspieler – Kopfhörer für private Listening Sessions, Anlage für gemeinsames Hören. Sitzlandschaften zum Lesen, zentraler Tisch für Gespräche über Musik und Bücher. Stille und Austausch wechseln sich ab. Handys bleiben draussen.
Drei Zonen der Entschleunigung
Die KANTINE (Public): Die Schnittstelle zur Stadt. 61 m² für zufällige Begegnung. Offener, kommunikativer Raum für Espresso und spontane Gespräche. Niedrige Schwelle, kein Zeitdruck.
Die WERKSTATT (Members Only): Der Übergang vom Digitalen zum Physischen. 44 m² mit zwei zentralen Community-Tables. Hier wird gebastelt, gezeichnet, gebaut. Werkzeuge und Materialien sind frei zugänglich. Soziale Interaktion durch gemeinsames Machen. Textile Vorhänge schaffen akustische Abschottung von der Kantine. Handys bleiben draussen.
Das ARCHIV (Members Only): Analoger Ort für kulturellen Austausch und persönliches Versinken. 42 m² mit Regalen voller Bücher und Schallplatten. Plattenspieler – Kopfhörer für private Listening Sessions, Anlage für gemeinsames Hören. Sitzlandschaften zum Lesen, zentraler Tisch für Gespräche über Musik und Bücher. Stille und Austausch wechseln sich ab. Handys bleiben draussen.
Drei Zonen der Entschleunigung
Die KANTINE (Public): Die Schnittstelle zur Stadt. 61 m² für zufällige Begegnung. Offener, kommunikativer Raum für Espresso und spontane Gespräche. Niedrige Schwelle, kein Zeitdruck.
Die WERKSTATT (Members Only): Der Übergang vom Digitalen zum Physischen. 44 m² mit zwei zentralen Community-Tables. Hier wird gebastelt, gezeichnet, gebaut. Werkzeuge und Materialien sind frei zugänglich. Soziale Interaktion durch gemeinsames Machen. Textile Vorhänge schaffen akustische Abschottung von der Kantine. Handys bleiben draussen.
Das ARCHIV (Members Only): Analoger Ort für kulturellen Austausch und persönliches Versinken. 42 m² mit Regalen voller Bücher und Schallplatten. Plattenspieler – Kopfhörer für private Listening Sessions, Anlage für gemeinsames Hören. Sitzlandschaften zum Lesen, zentraler Tisch für Gespräche über Musik und Bücher. Stille und Austausch wechseln sich ab. Handys bleiben draussen.
Drei Zonen der Entschleunigung
Die KANTINE (Public): Die Schnittstelle zur Stadt. 61 m² für zufällige Begegnung. Offener, kommunikativer Raum für Espresso und spontane Gespräche. Niedrige Schwelle, kein Zeitdruck.
Die WERKSTATT (Members Only): Der Übergang vom Digitalen zum Physischen. 44 m² mit zwei zentralen Community-Tables. Hier wird gebastelt, gezeichnet, gebaut. Werkzeuge und Materialien sind frei zugänglich. Soziale Interaktion durch gemeinsames Machen. Textile Vorhänge schaffen akustische Abschottung von der Kantine. Handys bleiben draussen.
Das ARCHIV (Members Only): Analoger Ort für kulturellen Austausch und persönliches Versinken. 42 m² mit Regalen voller Bücher und Schallplatten. Plattenspieler – Kopfhörer für private Listening Sessions, Anlage für gemeinsames Hören. Sitzlandschaften zum Lesen, zentraler Tisch für Gespräche über Musik und Bücher. Stille und Austausch wechseln sich ab. Handys bleiben draussen.










Ergebnis
Ergebnis
Ergebnis
Der U-förmige Grundriss schafft drei Intensitätsstufen – öffentlich, produktiv, kontemplativ. Von der lauten Strasse über die produktive Mitte bis zum geschützten Archiv.
Die Kantine ist öffentliches Café. Werkstatt und Archiv erfordern Mitgliedschaft. Zwei Geschäftsmodelle unter einem Dach schaffen Balance zwischen Durchlässigkeit und Commitment.
Ein Club, der sich anpasst – nicht an Trends, sondern an menschliche Grundbedürfnisse: Begegnung, Machen, Eintauchen.
Der Offline Club denkt in Intensitäten, nicht in Funktionen.
Der U-förmige Grundriss schafft drei Intensitätsstufen – öffentlich, produktiv, kontemplativ. Von der lauten Strasse über die produktive Mitte bis zum geschützten Archiv.
Die Kantine ist öffentliches Café. Werkstatt und Archiv erfordern Mitgliedschaft. Zwei Geschäftsmodelle unter einem Dach schaffen Balance zwischen Durchlässigkeit und Commitment.
Ein Club, der sich anpasst – nicht an Trends, sondern an menschliche Grundbedürfnisse: Begegnung, Machen, Eintauchen.
Der Offline Club denkt in Intensitäten, nicht in Funktionen.
Der U-förmige Grundriss schafft drei Intensitätsstufen – öffentlich, produktiv, kontemplativ. Von der lauten Strasse über die produktive Mitte bis zum geschützten Archiv.
Die Kantine ist öffentliches Café. Werkstatt und Archiv erfordern Mitgliedschaft. Zwei Geschäftsmodelle unter einem Dach schaffen Balance zwischen Durchlässigkeit und Commitment.
Ein Club, der sich anpasst – nicht an Trends, sondern an menschliche Grundbedürfnisse: Begegnung, Machen, Eintauchen.
Der Offline Club denkt in Intensitäten, nicht in Funktionen.
Der U-förmige Grundriss schafft drei Intensitätsstufen – öffentlich, produktiv, kontemplativ. Von der lauten Strasse über die produktive Mitte bis zum geschützten Archiv.
Die Kantine ist öffentliches Café. Werkstatt und Archiv erfordern Mitgliedschaft. Zwei Geschäftsmodelle unter einem Dach schaffen Balance zwischen Durchlässigkeit und Commitment.
Ein Club, der sich anpasst – nicht an Trends, sondern an menschliche Grundbedürfnisse: Begegnung, Machen, Eintauchen.
Der Offline Club denkt in Intensitäten, nicht in Funktionen.

Letzte Prototypen
Letzte Prototypen
Letzte Prototypen
Offline Club 147 m² in Zürich-Altstetten Ein Konzept für den dritten Ort. Der U-förmige Grundriss verbindet öffentliches Café mit privaten Members-Bereichen für haptisches Gestalten und kulturellen Austausch.
Kunde
—
Zeitraum
2026
—
2026
Rolle
Konzept und Strategie
Projektübersicht
147 m² Dritter Ort
Ein hybrider Ort zwischen öffentlichem Café und privatem Mitgliederclub. Drei Zonen mit unterschiedlicher Zugänglichkeit: Öffentliches Café als Schnittstelle zur Stadt. Werkraum für haptisches Gestalten. Archiv für analoge Medien und kulturellen Austausch.
Für wen? Für alle, die zwischen digitalem Dauerlärm und physischer Entfremdung einen dritten Ort suchen. Der Raum bedient drei Grundbedürfnisse: Begegnung, Machen, Eintauchen.
Das Prinzip: Der U-förmige Grundriss wird zum räumlichen Gradient – von öffentlich zu privat, von laut zu still. Textile Vorhänge schaffen Zonierung ohne harte Grenzen.
Herausforderungen
Die Rückgewinnung der Präsenz in einer hyper-digitalen Ära
Die Grenzen zwischen Arbeit, Freizeit und digitalem Konsum haben sich aufgelöst. Unsere Aufmerksamkeit ist zu einer der knappsten Ressourcen geworden. Wir sind virtuell überall gleichzeitig, aber physisch immer seltener wirklich präsent.
Der dritte Ort – zwischen Zuhause und Arbeit – ist weitgehend verschwunden. Orte für zufällige Begegnung ohne Zeitdruck, für kulturellen Austausch ohne digitale Ablenkung, für haptisches Arbeiten mit analogen Materialien fehlen in unseren Städten.
Die Herausforderung: Wie gestalten wir einen Raum, der den „Always-On"-Modus des Gehirns sanft herunterfährt und echte soziale Interaktion sowie tiefe Immersion wieder möglich macht?




Resultate
Drei Zonen der Entschleunigung
Die KANTINE (Public): Die Schnittstelle zur Stadt. 61 m² für zufällige Begegnung. Offener, kommunikativer Raum für Espresso und spontane Gespräche. Niedrige Schwelle, kein Zeitdruck.
Die WERKSTATT (Members Only): Der Übergang vom Digitalen zum Physischen. 44 m² mit zwei zentralen Community-Tables. Hier wird gebastelt, gezeichnet, gebaut. Werkzeuge und Materialien sind frei zugänglich. Soziale Interaktion durch gemeinsames Machen. Textile Vorhänge schaffen akustische Abschottung von der Kantine. Handys bleiben draussen.
Das ARCHIV (Members Only): Analoger Ort für kulturellen Austausch und persönliches Versinken. 42 m² mit Regalen voller Bücher und Schallplatten. Plattenspieler – Kopfhörer für private Listening Sessions, Anlage für gemeinsames Hören. Sitzlandschaften zum Lesen, zentraler Tisch für Gespräche über Musik und Bücher. Stille und Austausch wechseln sich ab. Handys bleiben draussen.
Ergebnis
Der U-förmige Grundriss schafft drei Intensitätsstufen – öffentlich, produktiv, kontemplativ. Von der lauten Strasse über die produktive Mitte bis zum geschützten Archiv.
Die Kantine ist öffentliches Café. Werkstatt und Archiv erfordern Mitgliedschaft. Zwei Geschäftsmodelle unter einem Dach schaffen Balance zwischen Durchlässigkeit und Commitment.
Ein Club, der sich anpasst – nicht an Trends, sondern an menschliche Grundbedürfnisse: Begegnung, Machen, Eintauchen.
Der Offline Club denkt in Intensitäten, nicht in Funktionen.








Letzte Prototypen
Offline Club 147 m² in Zürich-Altstetten Ein Konzept für den dritten Ort. Der U-förmige Grundriss verbindet öffentliches Café mit privaten Members-Bereichen für haptisches Gestalten und kulturellen Austausch.
Offline Club 147 m² in Zürich-Altstetten Ein Konzept für den dritten Ort. Der U-förmige Grundriss verbindet öffentliches Café mit privaten Members-Bereichen für haptisches Gestalten und kulturellen Austausch.
Offline Club 147 m² in Zürich-Altstetten Ein Konzept für den dritten Ort. Der U-förmige Grundriss verbindet öffentliches Café mit privaten Members-Bereichen für haptisches Gestalten und kulturellen Austausch.
Kunde
Kunde
Kunde
—
—
—
Zeitraum
Zeitraum
Zeitraum
2026
2026
2026
—
—
—
2026
2026
2026
Rolle
Rolle
Rolle
Konzept und Strategie
Konzept und Strategie
Konzept und Strategie
Projektübersicht
Projektübersicht
Projektübersicht
147 m² Dritter Ort
Ein hybrider Ort zwischen öffentlichem Café und privatem Mitgliederclub. Drei Zonen mit unterschiedlicher Zugänglichkeit: Öffentliches Café als Schnittstelle zur Stadt. Werkraum für haptisches Gestalten. Archiv für analoge Medien und kulturellen Austausch.
Für wen? Für alle, die zwischen digitalem Dauerlärm und physischer Entfremdung einen dritten Ort suchen. Der Raum bedient drei Grundbedürfnisse: Begegnung, Machen, Eintauchen.
Das Prinzip: Der U-förmige Grundriss wird zum räumlichen Gradient – von öffentlich zu privat, von laut zu still. Textile Vorhänge schaffen Zonierung ohne harte Grenzen.
147 m² Dritter Ort
Ein hybrider Ort zwischen öffentlichem Café und privatem Mitgliederclub. Drei Zonen mit unterschiedlicher Zugänglichkeit: Öffentliches Café als Schnittstelle zur Stadt. Werkraum für haptisches Gestalten. Archiv für analoge Medien und kulturellen Austausch.
Für wen? Für alle, die zwischen digitalem Dauerlärm und physischer Entfremdung einen dritten Ort suchen. Der Raum bedient drei Grundbedürfnisse: Begegnung, Machen, Eintauchen.
Das Prinzip: Der U-förmige Grundriss wird zum räumlichen Gradient – von öffentlich zu privat, von laut zu still. Textile Vorhänge schaffen Zonierung ohne harte Grenzen.
147 m² Dritter Ort
Ein hybrider Ort zwischen öffentlichem Café und privatem Mitgliederclub. Drei Zonen mit unterschiedlicher Zugänglichkeit: Öffentliches Café als Schnittstelle zur Stadt. Werkraum für haptisches Gestalten. Archiv für analoge Medien und kulturellen Austausch.
Für wen? Für alle, die zwischen digitalem Dauerlärm und physischer Entfremdung einen dritten Ort suchen. Der Raum bedient drei Grundbedürfnisse: Begegnung, Machen, Eintauchen.
Das Prinzip: Der U-förmige Grundriss wird zum räumlichen Gradient – von öffentlich zu privat, von laut zu still. Textile Vorhänge schaffen Zonierung ohne harte Grenzen.
147 m² Dritter Ort
Ein hybrider Ort zwischen öffentlichem Café und privatem Mitgliederclub. Drei Zonen mit unterschiedlicher Zugänglichkeit: Öffentliches Café als Schnittstelle zur Stadt. Werkraum für haptisches Gestalten. Archiv für analoge Medien und kulturellen Austausch.
Für wen? Für alle, die zwischen digitalem Dauerlärm und physischer Entfremdung einen dritten Ort suchen. Der Raum bedient drei Grundbedürfnisse: Begegnung, Machen, Eintauchen.
Das Prinzip: Der U-förmige Grundriss wird zum räumlichen Gradient – von öffentlich zu privat, von laut zu still. Textile Vorhänge schaffen Zonierung ohne harte Grenzen.
Herausforderungen
Herausforderungen
Herausforderungen
Die Rückgewinnung der Präsenz in einer hyper-digitalen Ära
Die Grenzen zwischen Arbeit, Freizeit und digitalem Konsum haben sich aufgelöst. Unsere Aufmerksamkeit ist zu einer der knappsten Ressourcen geworden. Wir sind virtuell überall gleichzeitig, aber physisch immer seltener wirklich präsent.
Der dritte Ort – zwischen Zuhause und Arbeit – ist weitgehend verschwunden. Orte für zufällige Begegnung ohne Zeitdruck, für kulturellen Austausch ohne digitale Ablenkung, für haptisches Arbeiten mit analogen Materialien fehlen in unseren Städten.
Die Herausforderung: Wie gestalten wir einen Raum, der den „Always-On"-Modus des Gehirns sanft herunterfährt und echte soziale Interaktion sowie tiefe Immersion wieder möglich macht?
Die Rückgewinnung der Präsenz in einer hyper-digitalen Ära
Die Grenzen zwischen Arbeit, Freizeit und digitalem Konsum haben sich aufgelöst. Unsere Aufmerksamkeit ist zu einer der knappsten Ressourcen geworden. Wir sind virtuell überall gleichzeitig, aber physisch immer seltener wirklich präsent.
Der dritte Ort – zwischen Zuhause und Arbeit – ist weitgehend verschwunden. Orte für zufällige Begegnung ohne Zeitdruck, für kulturellen Austausch ohne digitale Ablenkung, für haptisches Arbeiten mit analogen Materialien fehlen in unseren Städten.
Die Herausforderung: Wie gestalten wir einen Raum, der den „Always-On"-Modus des Gehirns sanft herunterfährt und echte soziale Interaktion sowie tiefe Immersion wieder möglich macht?
Die Rückgewinnung der Präsenz in einer hyper-digitalen Ära
Die Grenzen zwischen Arbeit, Freizeit und digitalem Konsum haben sich aufgelöst. Unsere Aufmerksamkeit ist zu einer der knappsten Ressourcen geworden. Wir sind virtuell überall gleichzeitig, aber physisch immer seltener wirklich präsent.
Der dritte Ort – zwischen Zuhause und Arbeit – ist weitgehend verschwunden. Orte für zufällige Begegnung ohne Zeitdruck, für kulturellen Austausch ohne digitale Ablenkung, für haptisches Arbeiten mit analogen Materialien fehlen in unseren Städten.
Die Herausforderung: Wie gestalten wir einen Raum, der den „Always-On"-Modus des Gehirns sanft herunterfährt und echte soziale Interaktion sowie tiefe Immersion wieder möglich macht?
Die Rückgewinnung der Präsenz in einer hyper-digitalen Ära
Die Grenzen zwischen Arbeit, Freizeit und digitalem Konsum haben sich aufgelöst. Unsere Aufmerksamkeit ist zu einer der knappsten Ressourcen geworden. Wir sind virtuell überall gleichzeitig, aber physisch immer seltener wirklich präsent.
Der dritte Ort – zwischen Zuhause und Arbeit – ist weitgehend verschwunden. Orte für zufällige Begegnung ohne Zeitdruck, für kulturellen Austausch ohne digitale Ablenkung, für haptisches Arbeiten mit analogen Materialien fehlen in unseren Städten.
Die Herausforderung: Wie gestalten wir einen Raum, der den „Always-On"-Modus des Gehirns sanft herunterfährt und echte soziale Interaktion sowie tiefe Immersion wieder möglich macht?

Resultate
Resultate
Resultate
Drei Zonen der Entschleunigung
Die KANTINE (Public): Die Schnittstelle zur Stadt. 61 m² für zufällige Begegnung. Offener, kommunikativer Raum für Espresso und spontane Gespräche. Niedrige Schwelle, kein Zeitdruck.
Die WERKSTATT (Members Only): Der Übergang vom Digitalen zum Physischen. 44 m² mit zwei zentralen Community-Tables. Hier wird gebastelt, gezeichnet, gebaut. Werkzeuge und Materialien sind frei zugänglich. Soziale Interaktion durch gemeinsames Machen. Textile Vorhänge schaffen akustische Abschottung von der Kantine. Handys bleiben draussen.
Das ARCHIV (Members Only): Analoger Ort für kulturellen Austausch und persönliches Versinken. 42 m² mit Regalen voller Bücher und Schallplatten. Plattenspieler – Kopfhörer für private Listening Sessions, Anlage für gemeinsames Hören. Sitzlandschaften zum Lesen, zentraler Tisch für Gespräche über Musik und Bücher. Stille und Austausch wechseln sich ab. Handys bleiben draussen.
Drei Zonen der Entschleunigung
Die KANTINE (Public): Die Schnittstelle zur Stadt. 61 m² für zufällige Begegnung. Offener, kommunikativer Raum für Espresso und spontane Gespräche. Niedrige Schwelle, kein Zeitdruck.
Die WERKSTATT (Members Only): Der Übergang vom Digitalen zum Physischen. 44 m² mit zwei zentralen Community-Tables. Hier wird gebastelt, gezeichnet, gebaut. Werkzeuge und Materialien sind frei zugänglich. Soziale Interaktion durch gemeinsames Machen. Textile Vorhänge schaffen akustische Abschottung von der Kantine. Handys bleiben draussen.
Das ARCHIV (Members Only): Analoger Ort für kulturellen Austausch und persönliches Versinken. 42 m² mit Regalen voller Bücher und Schallplatten. Plattenspieler – Kopfhörer für private Listening Sessions, Anlage für gemeinsames Hören. Sitzlandschaften zum Lesen, zentraler Tisch für Gespräche über Musik und Bücher. Stille und Austausch wechseln sich ab. Handys bleiben draussen.
Drei Zonen der Entschleunigung
Die KANTINE (Public): Die Schnittstelle zur Stadt. 61 m² für zufällige Begegnung. Offener, kommunikativer Raum für Espresso und spontane Gespräche. Niedrige Schwelle, kein Zeitdruck.
Die WERKSTATT (Members Only): Der Übergang vom Digitalen zum Physischen. 44 m² mit zwei zentralen Community-Tables. Hier wird gebastelt, gezeichnet, gebaut. Werkzeuge und Materialien sind frei zugänglich. Soziale Interaktion durch gemeinsames Machen. Textile Vorhänge schaffen akustische Abschottung von der Kantine. Handys bleiben draussen.
Das ARCHIV (Members Only): Analoger Ort für kulturellen Austausch und persönliches Versinken. 42 m² mit Regalen voller Bücher und Schallplatten. Plattenspieler – Kopfhörer für private Listening Sessions, Anlage für gemeinsames Hören. Sitzlandschaften zum Lesen, zentraler Tisch für Gespräche über Musik und Bücher. Stille und Austausch wechseln sich ab. Handys bleiben draussen.
Drei Zonen der Entschleunigung
Die KANTINE (Public): Die Schnittstelle zur Stadt. 61 m² für zufällige Begegnung. Offener, kommunikativer Raum für Espresso und spontane Gespräche. Niedrige Schwelle, kein Zeitdruck.
Die WERKSTATT (Members Only): Der Übergang vom Digitalen zum Physischen. 44 m² mit zwei zentralen Community-Tables. Hier wird gebastelt, gezeichnet, gebaut. Werkzeuge und Materialien sind frei zugänglich. Soziale Interaktion durch gemeinsames Machen. Textile Vorhänge schaffen akustische Abschottung von der Kantine. Handys bleiben draussen.
Das ARCHIV (Members Only): Analoger Ort für kulturellen Austausch und persönliches Versinken. 42 m² mit Regalen voller Bücher und Schallplatten. Plattenspieler – Kopfhörer für private Listening Sessions, Anlage für gemeinsames Hören. Sitzlandschaften zum Lesen, zentraler Tisch für Gespräche über Musik und Bücher. Stille und Austausch wechseln sich ab. Handys bleiben draussen.










Ergebnis
Ergebnis
Ergebnis
Der U-förmige Grundriss schafft drei Intensitätsstufen – öffentlich, produktiv, kontemplativ. Von der lauten Strasse über die produktive Mitte bis zum geschützten Archiv.
Die Kantine ist öffentliches Café. Werkstatt und Archiv erfordern Mitgliedschaft. Zwei Geschäftsmodelle unter einem Dach schaffen Balance zwischen Durchlässigkeit und Commitment.
Ein Club, der sich anpasst – nicht an Trends, sondern an menschliche Grundbedürfnisse: Begegnung, Machen, Eintauchen.
Der Offline Club denkt in Intensitäten, nicht in Funktionen.
Der U-förmige Grundriss schafft drei Intensitätsstufen – öffentlich, produktiv, kontemplativ. Von der lauten Strasse über die produktive Mitte bis zum geschützten Archiv.
Die Kantine ist öffentliches Café. Werkstatt und Archiv erfordern Mitgliedschaft. Zwei Geschäftsmodelle unter einem Dach schaffen Balance zwischen Durchlässigkeit und Commitment.
Ein Club, der sich anpasst – nicht an Trends, sondern an menschliche Grundbedürfnisse: Begegnung, Machen, Eintauchen.
Der Offline Club denkt in Intensitäten, nicht in Funktionen.
Der U-förmige Grundriss schafft drei Intensitätsstufen – öffentlich, produktiv, kontemplativ. Von der lauten Strasse über die produktive Mitte bis zum geschützten Archiv.
Die Kantine ist öffentliches Café. Werkstatt und Archiv erfordern Mitgliedschaft. Zwei Geschäftsmodelle unter einem Dach schaffen Balance zwischen Durchlässigkeit und Commitment.
Ein Club, der sich anpasst – nicht an Trends, sondern an menschliche Grundbedürfnisse: Begegnung, Machen, Eintauchen.
Der Offline Club denkt in Intensitäten, nicht in Funktionen.
Der U-förmige Grundriss schafft drei Intensitätsstufen – öffentlich, produktiv, kontemplativ. Von der lauten Strasse über die produktive Mitte bis zum geschützten Archiv.
Die Kantine ist öffentliches Café. Werkstatt und Archiv erfordern Mitgliedschaft. Zwei Geschäftsmodelle unter einem Dach schaffen Balance zwischen Durchlässigkeit und Commitment.
Ein Club, der sich anpasst – nicht an Trends, sondern an menschliche Grundbedürfnisse: Begegnung, Machen, Eintauchen.
Der Offline Club denkt in Intensitäten, nicht in Funktionen.



